
Gassi gehen im Münchborn
Ortsbegehung mit OB-Kandidat Stephen Heiser
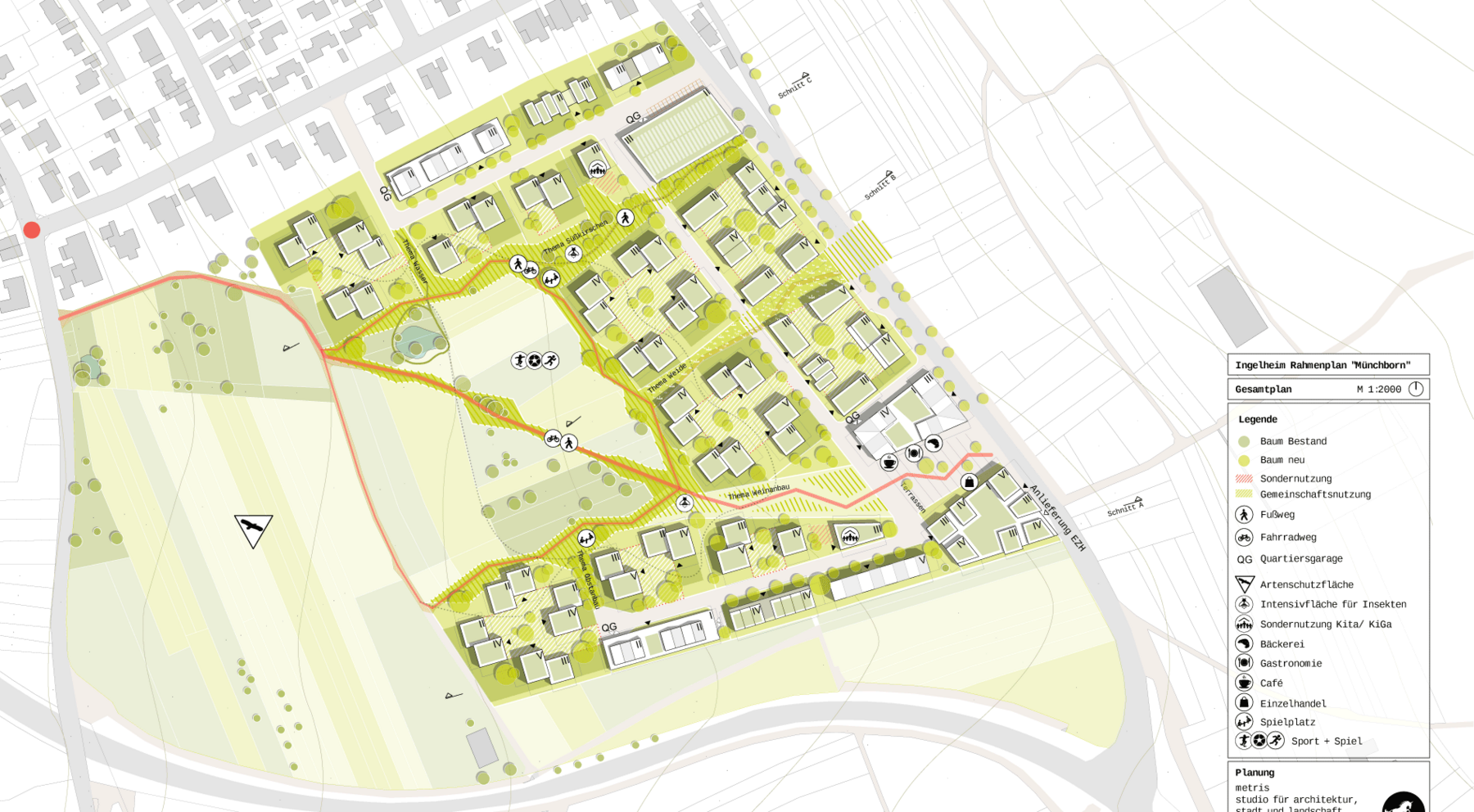
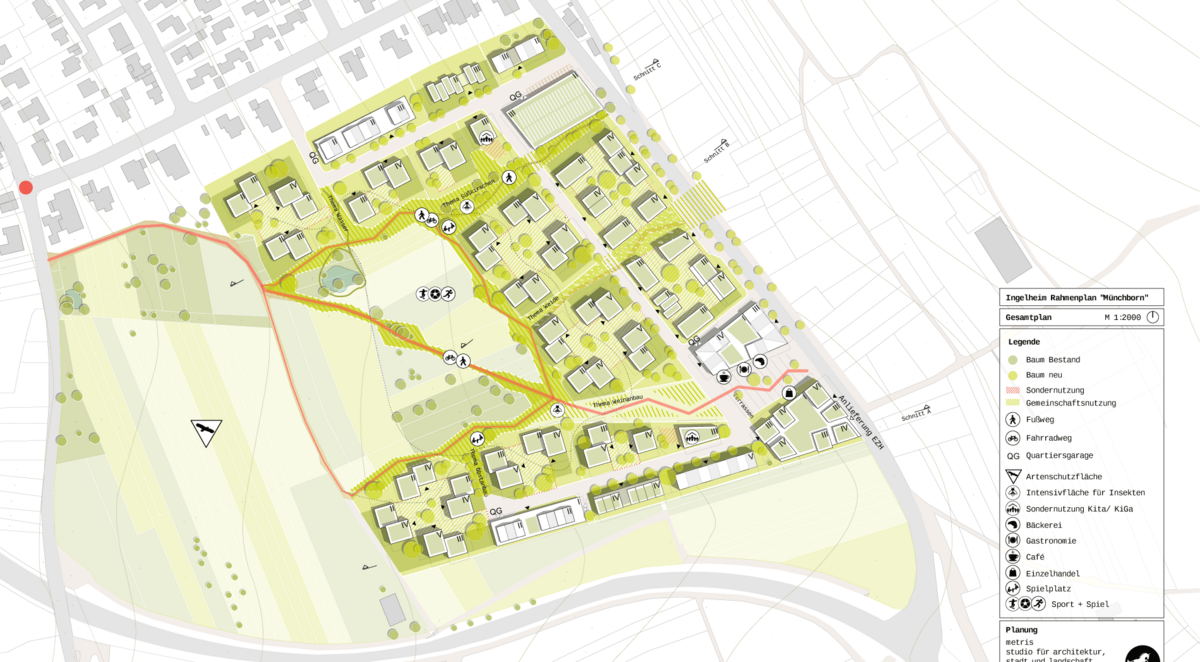
Stadtentwicklung lässt sich nicht nur am Schreibtisch beurteilen. Deshalb lade ich alle Interessierten herzlich zu einer gemeinsamen Ortsbegehung im Münchborn ein.
Bei einem Spaziergang durch das Gebiet möchte ich mir zusammen mit Anwohner:innen und Interessierten ein eigenes Bild machen und ins Gespräch kommen:
über den Rahmenplan, über die Besonderheiten des Ortes, über Fragen von Klima, Natur, Verkehr, Infrastruktur und darüber, wie sich Stadtentwicklung auf das Ganze unserer Stadt auswirkt.
Die Begehung ist ausdrücklich als ergebnisoffener Austausch gedacht, um unterschiedliche Perspektiven direkt vor Ort mitzunehmen.
Ich freue mich auf den gemeinsamen Spaziergang und das Gespräch.
Auch Hunde sind herzlich willkommen!
📍 Treffpunkt: Ecke Spiegelgasse/Frankenstraße
📅 Sonntag, 8. Februar 2026
🕖 15.00 Uhr
Stephen Heiser
OB-Kandidat Bündnis 90/Die Grünen
Pressemeldung: „Gassi gehen im Münchborn“
